BACK
BAB Group Office
Date
2013
Client
BAB Group
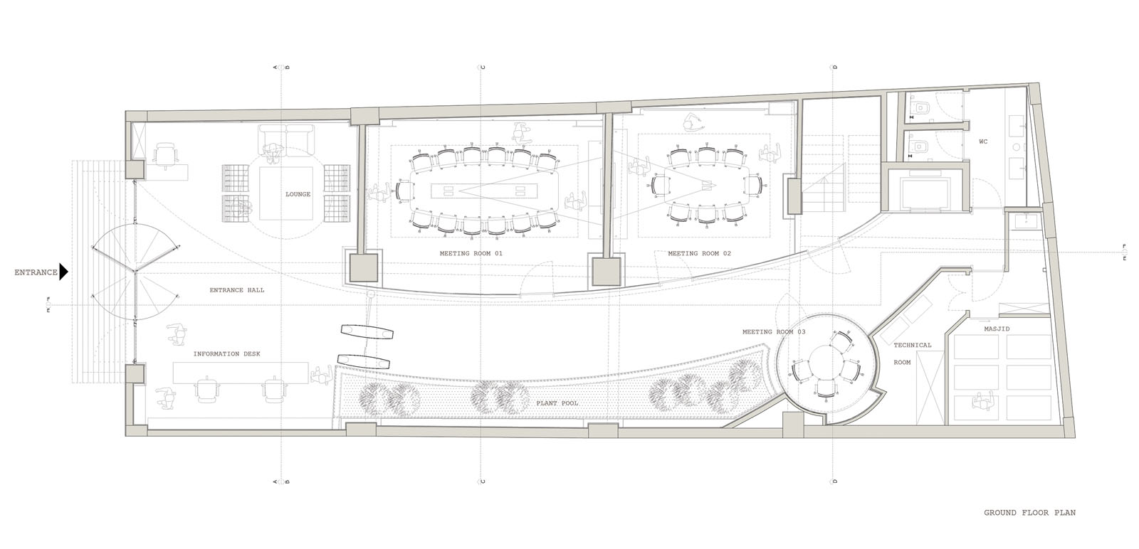
ABOUT THE PROJECT
Date : 2013
Location : Sütlüce / İstanbul
Client : BAB Group
Type : Office
Status : Completed / Conseptual Design Project / Application Project / Implementation
Team : Mithat Alacahanlı, Doğan Yıldız, Ayşegül Karaman
Description :
Conseptual design and application projects preparation and worksite management of BAB Group Turkey Head Office.















