BACK
Köyüm Stationery & Book Store
Date
2010
Client
Köyüm Kırtasiye
ABOUT THE PROJECT
Date : 2010
Location : Ereğli / Zonguldak
Client : Köyüm Kırtasiye
Type : Commercial
Status : Unrealised proposal / Conseptual Design Project
Description :
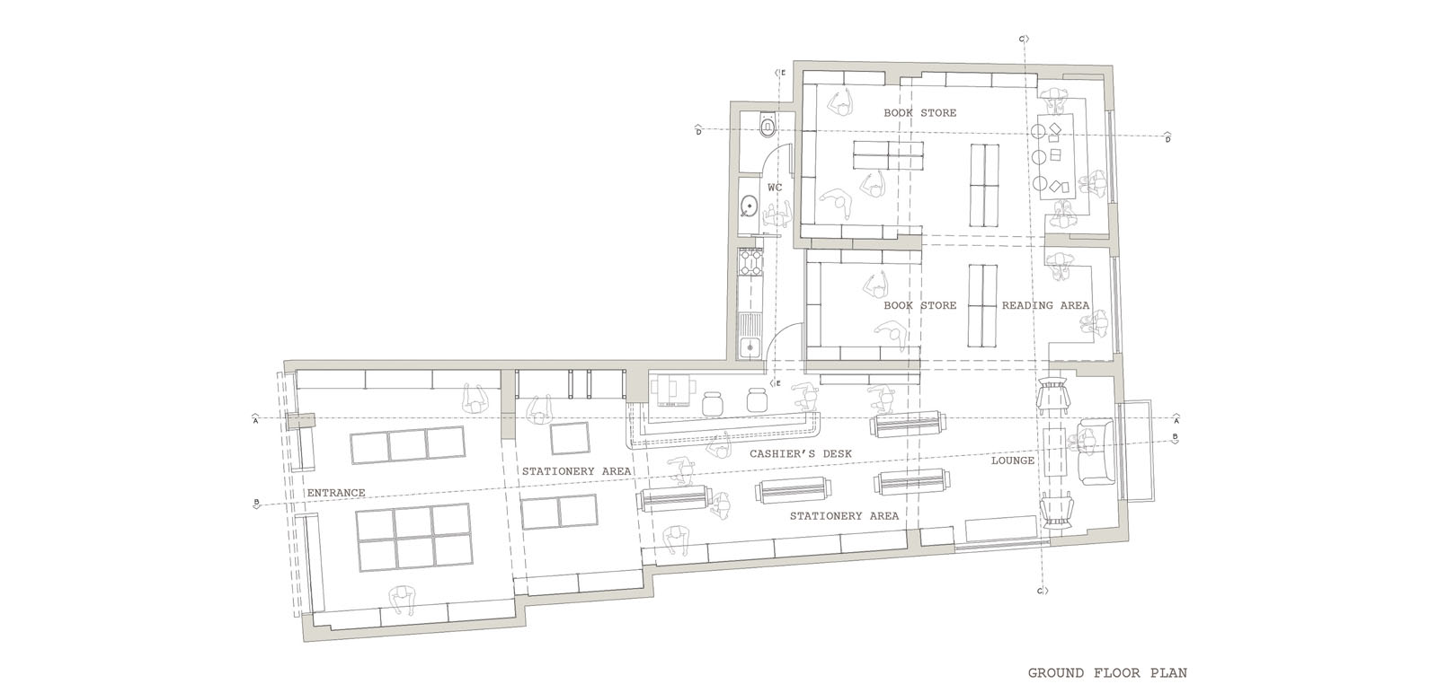
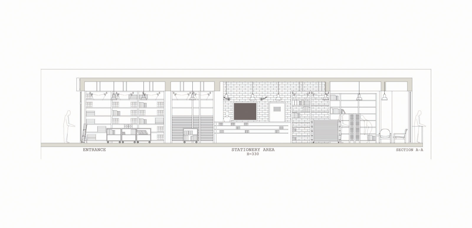
The renovation project for the oldest and the first stationery, KÖYÜM in Zonguldak/Ereğli.
KÖYÜM is designed with mostly wooden material and have a plain and modest concept. When renovating we consider this modesty as the main theme then modernized the indoor design.
The storeroom is arrenged as a book store, for the book sales.
We made an atmosphere for not only sales but for customers to spend more time in the stationery.














